South West Community Builds were appointed as to design and apply for grant funding for this amazing project to develop a new 3 classroom nursery for St Dennis Primary Academy. It has now been passed to a main contractor after South West Community Builds managed to secure all of the funding to deliver the build.
Design Brief/Outline of the Project:
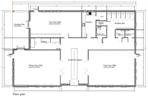
The proposal is to remove the existing Portakabin (2 classroom) and replace it with a timber framed building incorporating: –
- 3 classrooms
- Kitchen area just off one classroom
- Baby changing facilities
- Toilets – Adults, disabled, 6 junior toilets
- Storage for each classroom
- Cleaning cupboard/services
- Office/staff workbase
- Outdoor play areas
- Incorporate energy & water reducing technologies,
- PV, rainwater harvesting, high U value structure, air source and underfloor heating


